Keuruuntie 20
Kohteen kuvaus
Vuokrataan Liiketila, Toimistotila, Teollisuustila, Varastotila
Sijainti keskustassa, vieressä koulut, uimahalli, urheilukenttä ym.
Tiloissa toiminut mm. market/vaatemyymälä, toimistotiloja sekä viimeksi Postin jakelukeskus.
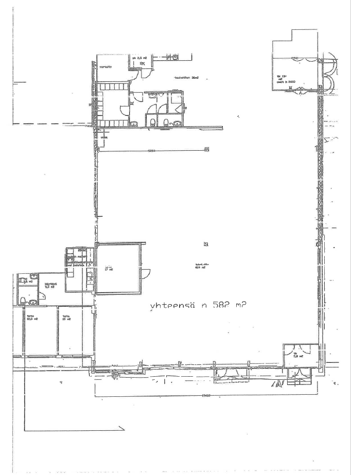
Tiloissa mm. 4 wc,suihku, keittiötila, esteetönkulku ja hyvät paikoitustilat.
Tilaa mahdollista jakaa pienemmäksi.
Vuokrahinta 8 €/m2 ALV 0.
Perustiedot
Myyntihinta: -
Lisätietoa myyntihinnasta: -
Vuokrahinta: 4640 € ALV 0€/kk
Lisätietoa vuokrahinnasta: 8 €/m2 ALV 0
Sijainti
Katuosoite: Keuruuntie 20
Postinumero: 42700
Postitoimipaikka: Keuruu
Kohteen tiedot
Liiketilaa m²: 440m²
Toimistotilaa: 40m²
Tuotantotilaa m²: -
Lämmintä varastotilaa m²: 100m²
Kylmää varastotilaa m²: -
Kokonaispinta-ala m²: 580m²
Tontin koko m²: -
Myyjän tiedot
Yhteyshenkilön nimi: Atte Malinen
Sähköpostiosoite: atte.malinen@keuruunkk.fi
Puhelinnumero: 044 505 5409
Liitteet
-
